Оголовки скважин для водоснабжения оборудованных насосами типа ЭЦВ
Рабочие чертежи
Описание проекта
Техническая документация 7.907.1, а именно выпуск первый, даёт пояснения об особенностях назначения и конструктивной детализации оголовок. В данном случае речь идёт о металлических деталях трубопровода, использующихся на скважинных участках, оборудованных насосными агрегатами серии ЭВЦ. Максимальная производительность такого насоса составляет не менее 375 м3 воды за один расчётный час. Этот показатель, в том числе, принимается при расчёте динамической и вибрационной нагрузки на устанавливаемые оголовки.
Основным назначением обозначенных изделия является осуществление надёжной герметизации стволов на устье водоотводящей системы. Кроме этого оголовки содействуют опоре труб водоподъёмного типа подключённых к насосам модификации ЭВЦ. Важно помнить, что описываемые оголовки требуется использовать исключительно на скважинах трубчатого типа.
Эксплуатационные условия
В зависимости от климатического региона, эти детали трубопровода могут нуждаться в защитной камере наземного или подземного типа. Необходимо это для нивелирования негативного воздействия внешних, природных факторов, а также стороннего, механического разрушения. Если речь идёт о подземной камере, то она должна сооружаться по техническому регламенту типовых водопроводных, смотровых колодцев. Особенно важно это, если средняя температура наружного воздуха приближается к - 40 градусам по шкале Цельсия. Что касается сейсмической устойчивости, то этот параметр составляет не более 8 баллов.
Оголовки скважинные конструкция
Описываемая деталь трубопровода состоит из нескольких конструктивных частей:
- основной отвод. Параметр диаметра в этом случае составляет 100 или 150 мм (в зависимости от эксплуатационного расхода воды);
- переходной узел к базовому отводу;
- диафрагма, имеющая дросселирующее отверстие. Её основная функция состоит в оптимизации давления в локальном участке, а также контролировании расхода воды из обслуживаемой скважины;
- задвижки (2 штуки). При долговременном использовании оголовков, описываемых выпуске 1 документации 7.907.1 - об необходимости подкачки установленного объёма сжатого воздуха в пространство между трубами.
Содержание проекта

Чертеж оголовка скважин


Чертеж патрубка отводного

Чертеж плиты опорной

Чертеж плиты

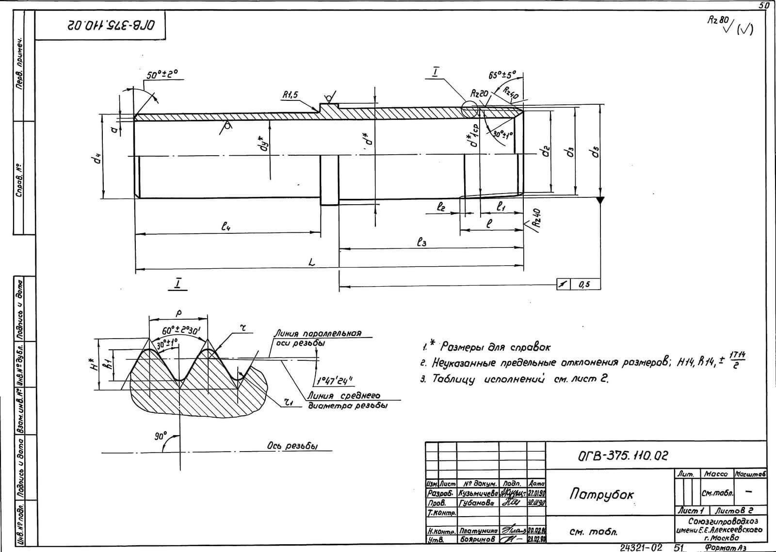
Чертеж патрубка

Чертеж втулки и штуцера

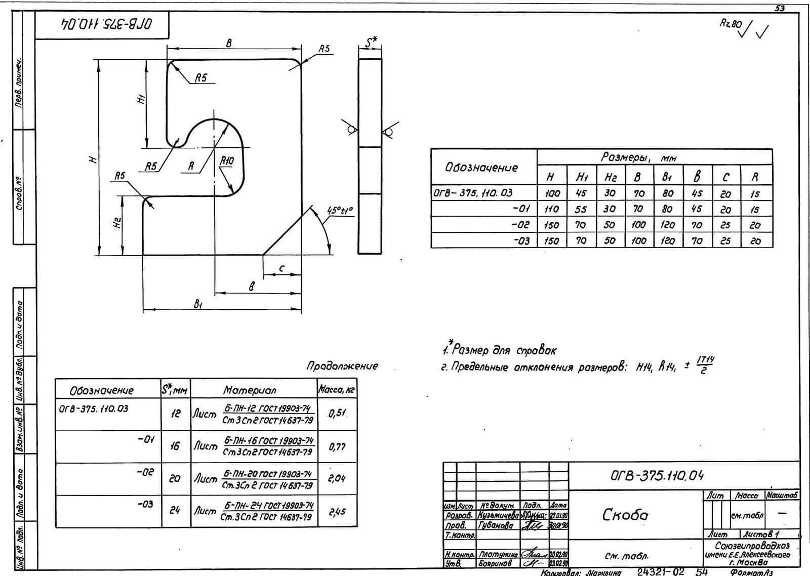
Чертеж скобы

Чертеж прокладки и пробки

Чертеж патрубка устьевого

Хотите узнать подробнее? Заполните форму и мы свяжемся с вами в ближайшее время.
Оставить заявку