от
1 354 руб. руб./шт
от
3 336 руб. руб./шт
Завод металлоконструкций "Северозапад" изготовит под заказ сальники для теплосети КЛ13 (серия 3.903). Цена на сальники данного вида выгодно отличается от цены наших конкурентов.

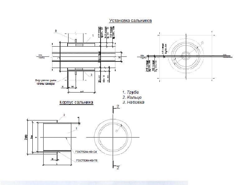
Сальник КЛ 13. Спецификация на 1 сальник.
|
Услов. Проход Ду |
Наружн диаметр изоляции |
Корпус сальника | Набивка | |||||||
|
Подающей/ обратной трубы |
Труба или лист ГОСТ см. прим. Л.2.3 | Сталь прокатн. ГОСТ 5681-57 |
Масса корпуса сальника кг |
|||||||
| поз.1 | поз.2 | поз.3 | ||||||||
|
Д мм |
б мм |
L мм |
Масса, кг |
Д нар. Мм |
Д вн. Мм |
Масса кг |
||||
| 1 | 2 | 3 | 4 | 5 | 6 | 7 | 8 | 9 | 10 | 11 |
| 50 | 265/265 | 377 | 6 | 450 | 25,1 | 440 | 380 | 3,04 | 28,1 | 9,6 |
| 70 | 265/265 | 377 | 6 | 25,1 | 440 | 380 | 3,04 | 28,1 | 9,6 | |
| 80 | 317/317 | 426 | 6 | 32,5 | 490 | 430 | 3,41 | 35,9 | 10 | |
| 100 | 317/317 | 426 | 6 | 32,5 | 490 | 430 | 3,41 | 35,9 | 10 | |
| 125 | 369/369 | 480 | 6 | 31,9 | 543 | 483 | 3,8 | 35,7 | 11 | |
| 150 | 369/369 | 480 | 6 | 31,9 | 543 | 483 | 3,8 | 35,7 | 11 | |
| 200 | 466/369 | 570/480 | 6/6 | 37.9/37.9 | 633/543 | 573/483 | 4.46/3.8 | 42.4/35.7 | 13.3/11.3 | |
| 250 | 520/466 | 630/570 | 6/6 | 41.9/37.9 | 693/633 | 633/573 | 4.91/4.46 | 46.8/42.4 | 15.8/13.3 | |
| 300 | 570/520 | 680/630 | 6/6 | 45.2/41.9 | 743/693 | 583/633 | 5.28/4.91 | 50.5/46.8 | 17.2/15.8 | |
| 350 | 620/570 | 730/680 | 8/8 | 64.8/60.5 | 793/743 | 733/683 | 5.65/5.22 | 70.5/65.6 | 15.4/17.2 | |
| 400 | 670/620 | 780/730 | 8/8 | 69.2/64.8 | 843/793 | 783/753 | 6.02/5.65 | 75.2/70.5 | 19/18.4 | |
| 450 | 720/670 | 830/780 | 8/8 | 73.7/69.2 | 893/843 | 833/783 | 6.59/6.02 | 80.1/75.2 | 20.9/19.9 | |
| 500 | 760/720 | 870/830 | 8/8 | 77.2/73.7 | 933/893 | 873/833 | 6.59/6.39 | 83.9/80.1 | 23.9/20.9 | |
| 600 | 860/760 | 970/870 | 8/8 | 86.1/77.2 | 1033/933 | 973/873 | 7.41/6.69 | 93.5/83.9 | 24.1/23.9 | |
| 700 | 960/860 | 1070/970 | 8/8 | 95.0/86.1 | 1133/1033 | 1073/973 | 8.15/7.41 | 103.2/93.5 | 26/24.1 | |
| 800 | 1060/880 | 1170/990 | 8/8 | 103.8/87.8 | 1233/1053 | 1173/993 | 8.89/7.56 | 112.7/95.4 | 27.3/25.0 | |
| 900 | 1160/980 | 1290/1110 | 8/8 | 114.5/98.5 | 1353/1173 | 1293/1113 | 9.78/8.44 | 124.3/106.0 | 29.2/26.7 | |
| 1000 | 1260/1080 | 1390/1210 | 8/8 | 123.3/107.4 | 1453/1275 | 1393/1213 | 10.45/9.19 | 133.8/116.6 | 31.5/27.8 | |
Спецификация на 1 сальник
|
Услов. Проход Ду |
Корпус сальника | Набивка | Зачеканка | Замазка | Ду | |||||||||||
| Труба ГОСТ см. Geyrn 8 | Кольцо сталь прокатн. ГОСТ 19903-74 | Круг сталь круглая ГОСТ 2590-71 |
Масса корпуса сальника кг |
|||||||||||||
| поз.1 | поз.2 | поз.3 | поз.4 | поз.5 | поз.6 | |||||||||||
|
Д мм |
б мм |
А мм |
Масса, кг |
Д нар. Мм |
Д вн. Мм |
Масса кг |
d мм |
L в разв. Виде, мм |
Кол.шт. | Масса, кг | Масса, кг | |||||
| 50 | 159 | 4,5 | 450 | 7,7 | 226 | 161 | 1,5 | 6 | 350 | 3 | 0,2 | 9,4 | 1,2 | 1 | 0,5 | 50 |
| 80 | 159 | 4,5 | 7,7 | 226 | 161 | 1,5 | 380 | 0,3 | 9,5 | 0,8 | 1 | 0,5 | 80 | |||
| 100 | 159 | 4,5 | 7,7 | 226 | 161 | 1,5 | 410 | 0,3 | 9,5 | 0,6 | 1 | 0,5 | 100 | |||
| 125 | 219 | 4,5 | 10,7 | 287 | 222 | 1,9 | 570 | 0,4 | 13 | 1,4 | 1,3 | 0,7 | 125 | |||
| 150 | 273 | 5 | 15,1 | 341 | 276 | 2,5 | 10 | 690 | 1,3 | 18,9 | 2,3 | 1,5 | 0,8 | 150 | ||
| 200 | 325 | 6 | 21,6 | 393 | 328 | 2,9 | 850 | 1,6 | 26,1 | 2,6 | 2,8 | 1 | 200 | |||
| 250 | 377 | 6 | 25,1 | 445 | 380 | 3,3 | 1010 | 1,9 | 30,3 | 2,9 | 2,8 | 1 | 250 | |||
| 300 | 426 | 6 | 32,5 | 494 | 429 | 3,7 | 16 | 1170 | 5,5 | 41,7 | 3,2 | 2,8 | 1 | 300 | ||
| 350 | 530 | 6 | 35,4 | 598 | 533 | 4,5 | 1390 | 6,6 | 46,5 | 6,1 | 4,2 | 1,4 | 350 | |||
| 400 | 530 | 6 | 35,4 | 598 | 533 | 4,5 | 1480 | 7 | 46,9 | 4,2 | 4,2 | 1,4 | 400 | |||
| 500 | 630 | 6 | 42,2 | 733 | 633 | 8,5 | 1790 | 8,5 | 59,2 | 4,8 | 4,7 | 5 | 500 | |||
| 600 | 720 | 6 | 48,2 | 823 | 723 | 9,6 | 2080 | 9,8 | 67,6 | 7,9 | 5,3 | 5,3 | 600 | |||
| 700 | 820 | 6 | 54,5 | 923 | 823 | 10,8 | 2390 | 11,3 | 76,6 | 6,1 | 6,2 | 8,9 | 700 | |||
| 800 | 920 | 6 | 61,1 | 1023 | 923 | 12,1 | 2700 | 12,8 | 86 | 7 | 7,1 | 10 | 800 | |||
| 900 | 1020 | 6 | 67,9 | 1123 | 1023 | 12,9 | 3020 | 14,3 | 95,1 | 7,7 | 7,6 | 11,5 | 900 | |||
| 1000 | 1120 | 6 | 74,6 | 1223 | 1123 | 15,4 | 3330 | 15,8 | 105,8 | 8,5 | 8,2 | 12,6 | 1000 | |||
| 1200 | 1320 | 6 | 87,9 | 1425 | 1325 | 17,3 | 3960 | 18,7 | 123,9 | 10,5 | 9,5 | 13,8 | 1200 | |||
| 1400 | 1580 | 6 | 101,2 | 1525 | 1525 | 19,7 | 4590 | 21,7 | 142,6 | 12,2 | 10,8 | 17 | 1400 | |||
Установка сальников КЛ13
Чертеж узла установки сальника
Дополнительные материалы:
Цены на сальники серии 3.903 КЛ-13 вып. 0-1 для инженерных сетей
| № по п/п | Условный проход Ду | Масса корпуса сальника, кг | Масса набивки, зачеканки, замазки, кг | Цены, руб.с НДС |
| 1 | 50 | 9,4 | 2,7 | 1 354,00 |
| 2 | 80 | 9,5 | 2,3 | 1 368,00 |
| 3 | 100 | 9,5 | 2,1 | 1 368,00 |
| 4 | 125 | 13 | 3,4 | 1 872,00 |
| 5 | 150 | 18,9 | 4,6 | 2 722,00 |
| 6 | 200 | 26,1 | 6,4 | 3 758,00 |
| 7 | 250 | 30,3 | 6,7 | 4 363,00 |
| 8 | 300 | 41,7 | 7 | 6 005,00 |
| 9 | 350 | 46,5 | 10,8 | 6 696,00 |
| 10 | 400 | 46,9 | 9,8 | 6 754,00 |
| 11 | 500 | 59,2 | 14,5 | 8 525,00 |
| 12 | 600 | 67,6 | 15,5 | 9 734,00 |
| 13 | 700 | 76,6 | 21,2 | 11 030,00 |
| 14 | 800 | 86 | 24,1 | 12 384,00 |
| 15 | 900 | 95,1 | 26,8 | 13 694,00 |
| 16 | 1000 | 105,8 | 29,3 | 15 235,00 |
| 17 | 1200 | 123,9 | 33,9 | 17 842,00 |
| 18 | 1400 | 142,6 | 40 | 20 534,00 |
Цены на сальники серии 3.903 КЛ-13 вып. 0-1 для тепловых сетей
| № по п/п | Условный проход Ду | Наружный диаметр изоляции | Труба корпуса сальника | Кольцо корпуса сальника |
Масса корпуса сальника, кг |
Масса набивки, кг |
ЦЕНА, руб. с НДС | |||
| Д, мм | L, мм | Масса, кг | Д нар., мм | Масса, кг | ||||||
| 1 | 50 | 265 | 377 | 450 | 25,1 | 440 | 3,04 | 28,1 | 9,6 | 4 046,00 |
| 2 | 50 | 265 | 377 | 450 | 25,1 | 440 | 3,04 | 28,1 | 9,6 | 4 046,00 |
| 3 | 70 | 265 | 377 | 450 | 25,1 | 440 | 3,04 | 28,1 | 9,6 | 4 046,00 |
| 4 | 70 | 265 | 377 | 450 | 25,1 | 440 | 3,04 | 28,1 | 9,6 | 4 046,00 |
| 5 | 80 | 317 | 426 | 450 | 32,5 | 490 | 3,41 | 35,9 | 10 | 5 170,00 |
| 6 | 80 | 317 | 426 | 450 | 32,5 | 490 | 3,41 | 35,9 | 10 | 5 170,00 |
| 7 | 100 | 317 | 426 | 450 | 32,5 | 490 | 3,41 | 35,9 | 10 | 5 170,00 |
| 8 | 100 | 317 | 426 | 450 | 32,5 | 490 | 3,41 | 35,9 | 10 | 5 170,00 |
| 9 | 125 | 369 | 480 | 450 | 31,9 | 543 | 3,8 | 35,7 | 11 | 5 140,00 |
| 10 | 125 | 369 | 480 | 450 | 31,9 | 543 | 3,8 | 35,7 | 11 | 5 140,00 |
| 11 | 150 | 369 | 480 | 450 | 31,9 | 543 | 3,8 | 35,7 | 11 | 5 140,00 |
| 12 | 150 | 369 | 480 | 450 | 31,9 | 543 | 3,8 | 35,7 | 11 | 5 140,00 |
| 13 | 200 | 466 | 570 | 450 | 37,9 | 633 | 4,46 | 42,4 | 13,3 | 6 105,00 |
| 14 | 200 | 369 | 480 | 450 | 31,9 | 543 | 3,8 | 35,7 | 11,3 | 5 140,00 |
| 15 | 250 | 520 | 630 | 450 | 41,9 | 693 | 4,91 | 46,8 | 15,8 | 6 739,00 |
| 16 | 250 | 466 | 570 | 450 | 37,9 | 633 | 4,46 | 42,4 | 15,3 | 6 105,00 |
| 17 | 300 | 570 | 680 | 450 | 45,2 | 743 | 5,28 | 50,5 | 17,2 | 7 272,00 |
| 18 | 300 | 520 | 630 | 450 | 41,9 | 693 | 4,91 | 46,8 | 15,8 | 6 739,00 |
| 19 | 350 | 620 | 730 | 450 | 64,8 | 793 | 5,65 | 70,5 | 13,4 | 10 152,00 |
| 20 | 350 | 570 | 680 | 450 | 60,5 | 743 | 5,28 | 65,6 | 17,2 | 9 446,00 |
| 21 | 400 | 670 | 780 | 450 | 69,2 | 343 | 6,02 | 75,2 | 19 | 10 828,00 |
| 22 | 400 | 620 | 730 | 450 | 64,8 | 795 | 5,65 | 70,5 | 18,4 | 10 152,00 |
| 23 | 450 | 720 | 830 | 450 | 73,7 | 893 | 6,39 | 80,1 | 20,9 | 11 534,00 |
| 24 | 450 | 670 | 780 | 450 | 69,2 | 843 | 6,02 | 75,2 | 19 | 10 830,00 |
| 25 | 500 | 760 | 870 | 450 | 77,2 | 935 | 6,59 | 83,9 | 23,9 | 12 081,00 |
| 26 | 500 | 720 | 830 | 450 | 73,7 | 893 | 6,39 | 80,1 | 20,9 | 11 534,00 |
| 27 | 600 | 860 | 970 | 450 | 86,1 | 1033 | 7,41 | 93,5 | 24,1 | 13 464,00 |
| 28 | 600 | 760 | 870 | 450 | 77,2 | 933 | 6,69 | 83,9 | 23,9 | 12 081,00 |
| 29 | 700 | 960 | 1070 | 450 | 95 | 1133 | 8,15 | 103,2 | 26 | 14 860,00 |
| 30 | 700 | 860 | 970 | 450 | 86,1 | 1033 | 7,41 | 93,5 | 24,1 | 13 464,00 |
| 31 | 800 | 1060 | 1170 | 450 | 103,8 | 1233 | 8,89 | 112,7 | 27,3 | 16 228,00 |
| 32 | 800 | 880 | 990 | 450 | 87,8 | 1053 | 7,56 | 95,4 | 25 | 13 737,00 |
| 33 | 900 | 1160 | 1290 | 450 | 114,5 | 1353 | 9,78 | 124,3 | 29,2 | 17 899,00 |
| 34 | 900 | 980 | 1110 | 450 | 98,5 | 1173 | 8,44 | 106,9 | 26,7 | 15 393,00 |
| 35 | 1000 | 1260 | 1390 | 450 | 123,3 | 1453 | 10,45 | 133,8 | 31,5 | 19 267,00 |
| 36 | 1000 | 1080 | 1210 | 450 | 107,4 | 1273 | 9,19 | 116,6 | 27,8 | 16 790,00 |
Хотите узнать подробнее? Заполните форму и мы свяжемся с вами в ближайшее время.
Оставить заявку