Завод "Северозапад" занимается производством и установкой опор и мачт освещения.

Наша компания приглашает к сотрудничеству муниципальные и частные предприятия и предлагает услуги по изготовлению опор освещения для установки в парковых зонах, местах массового посещения, на автомобильных стоянках, придомовой территории, на промышленных объектах. Мачты осветительные можно купить по низким ценам, что не влияет на качество изделий. Так же, у нас можно приобрести фундаменты для опор освещения.
Опоры освещения делятся на несиловые и силовые. Первые предназначены только для размещения светильников, прожекторов.
Типы крепления опор освещения в зависимости от конструкции
- линии контактной сети троллейбусов, трамваев;
- оптоволоконные провода и кабель для прокладки компьютерных, телефонных сетей;
- кронштейны для рекламных материалов, флагштоков, молниеотводов, светофоров.
Завод «Северозапад» производит опоры освещения по чертежам заказчика.
Конструкторский отдел выполняет доработку/разработку проектной документации с учетом специфики объекта размещения, необходимого крепежного материала, вводных щитков и т. д.

Опоры наружного освещения. Типы. Изготовление на заводе "Северозапад":
- прямостоечные опоры освещения, состоящие из одного столба. Для установки предварительно готовится котлован для монтажа арматуры и заливки фундамента;
- фланцевые. В котловане первоначально фиксируется закладная деталь. После окончательного застывания бетона производится монтаж верхней части опоры.
- мачты освещения.
Выбор конкретного типа определяется условиями транспортировки и установки, требованиями заказчика.
Продукция завода устойчива к воздействию внешних неблагоприятных факторов: снега, ветра, в том числе, штормового, осадков, сезонных перепадов температуры воздуха. Вибрация от движущегося транспорта не влияет на эксплуатационные качества, не становится причиной обрушения опор. В работе используются качественные конструкционные стали с дополнительной антикоррозийной обработкой горячим цинкованием.
Назначение опор освещения

- улиц;
- автодорог;
- промышленных площадей;
- спортивных площадок и других объектов.
Изготовление опор и мачт освещения осуществляется на промышленных площадках нашей компании и представляет собой производство осветительных столбов из различного металла (углеродистая сталь, оцинкованный металл) и для любых объектов.
Мы можем также изготовить осветительные столбы и мачты из оцинкованного металла по чертежам и спецификациям, предоставленным заказчиком.
Виды опор и мачт освещения

Опоры и мачты для освещения дорог и улиц могут быть различных форм и размеров. В основном, эти конструкции обработаны методом горячего оцинкования и обладают эффектным видом и надежностью.
Оцинкованная опора обладает коррозийной устойчивостью и менее подвержена атмосферному воздействию (осадки, солнечный свет, перепады температур).
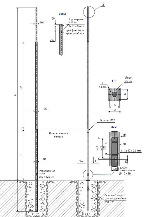
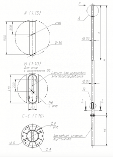
Такие опоры и мачты освещения обладают большим сроком службы, высокой прочностью, коррозионной стойкостью и сохраняют свой первозданный вид на протяжении всего срока эксплуатации. Их изготавливают из оцинкованного листа различной толщины в зависимости от нагрузок на опоры осветительными приборами. Столбы, как правило, фиксируются на специальный фундамент под опоры освещения и крепятся фланцевыми опорами к закладным элементам.
Чертеж опоры освещения ОТФ

Фундаментный блок Фб1

Чертеж фундаментного блока Фб

Для различных мест установки опор освещения предусмотрены свои способы крепления к основанию.
Опоры и мачты освещения, изготовленные на нашем предприятии, отличаются высоким качеством и долгим сроком службы. Они устойчивы к суровым атмосферным воздействиям.
Назначение опор и мачт освещения
Опоры и мачты освещения активно используют в городах для освещения:
- автомобильных магистралей;
- парков и скверов;
- спортивных комплексов;
- и других общественных мест.
Мы можем предложить вам готовое решение, либо изготовить опоры и мачты освещения по вашим оригинальным проектам.
Технические характеристики опор освещения ОТф и ОТ (трубчатых несиловых)
Трубчатые опоры типа ОТф (108/57) – с фланцевым соединение опоры и фундаментного блока.
| Обозначение опоры | D | d | H | Масса | Установочное | Фланец опоры | Рекомендуемый | |||||
| место | ØA | Sфл | Мц | n | dотв | Обозначение фланца | фундаментный | |||||
| мм | мм | м | кг | кронштейна | мм | мм | мм | шт | мм | блок | ||
| ОТф 108/57 | ||||||||||||
| ОТф(108/57)-1,5 | 108 | 57 | 1,5 | 17 | - | 250х250 | 10 | 160 | 4 | 20 | фл.250х250х10-Мц160-4х20 | ФБ-0,108-0,8 |
| ОТф(108/57)-2,0 | 108 | 57 | 2 | 20 | - | 250х250 | 10 | 160 | 4 | 20 | фл.250х250х10-Мц160-4х20 | ФБ-0,108-0,8 |
| ОТф(108/57)-2,5 | 108 | 57 | 2,5 | 24 | - | 250х250 | 10 | 160 | 4 | 20 | фл.250х250х10-Мц160-4х20 | ФБ-0,108-0,8 |
| ОТф(108/57)-3,0 | 108 | 57 | 3 | 26 | - | 250х250 | 10 | 160 | 4 | 20 | фл.250х250х10-Мц160-4х20 | ФБ-0,108-0,8 |
| ОТф(108/57)-3,2 | 108 | 57 | 3,2 | 28 | - | 250х250 | 10 | 160 | 4 | 20 | фл.250х250х10-Мц160-4х20 | ФБ-0,108-1,0 |
| ОТф(108/57)-3,5 | 108 | 57 | 3,5 | 30 | - | 250х250 | 10 | 160 | 4 | 20 | фл.250х250х10-Мц160-4х20 | ФБ-0,108-1,0 |
| ОТф(108/57)-3,7 | 108 | 57 | 3,7 | 31 | - | 250х250 | 10 | 160 | 4 | 20 | фл.250х250х10-Мц160-4х20 | ФБ-0,108-1,0 |
Трубчатые опоры типа ОТп (108/57) – с прямостоечным соединение опоры и фундаментного блока
| Обозначение опоры | D | d | Н | H1 | Масса | Установочное место кронштейна |
| мм | мм | м | м | кг | ||
| ОТп 108/57 | ||||||
| ОТп(108/57)-1,5-0,8 | 108 | 57 | 1,5 | 0,8 | 22 | - |
| ОТп(108/57)-2,0-0,8 | 108 | 57 | 2 | 0,8 | 24 | - |
| ОТп(108/57)-2,5-0,8 | 108 | 57 | 2,5 | 0,8 | 29 | - |
| ОТп(108/57)-3,0-0,8 | 108 | 57 | 3 | 0,8 | 32 | - |
| ОТп(108/57)-3,2-0,8 | 108 | 57 | 3,2 | 0,8 | 34 | - |
| ОТп(108/57)-3,5-0,8 | 108 | 57 | 3,5 | 0,8 | 37 | - |
| ОТп(108/57)-3,7-1,0 | 108 | 57 | 3,7 | 1 | 39 | - |
Трубчатые опоры типа ОТф (108/76) – с фланцевым соединение опоры и фундаментного блока.
| Обозначение опоры | D | d | H | Масса | Установочное | Фланец опоры | Рекомендуемый | |||||
| место | ØA | Sфл | Мц | n | dотв | Обозначение фланца | фундаментный | |||||
| мм | мм | м | кг | кронштейна | мм | мм | мм | шт | мм | блок | ||
| ОТф 108/76 | ||||||||||||
| ОТф(108/76)-1,5 | 108 | 76 | 1,5 | 20 | Ф2 / Ф3 | 250х250 | 10 | 160 | 4 | 20 | фл.250х250х10-Мц160-4х20 | ФБ-0,108-0,8 |
| ОТф(108/76)-2,0 | 108 | 76 | 2 | 23 | Ф2 / Ф3 | 250х250 | 10 | 160 | 4 | 20 | фл.250х250х10-Мц160-4х20 | ФБ-0,108-0,8 |
| ОТф(108/76)-2,5 | 108 | 76 | 2,5 | 27 | Ф2 / Ф3 | 250х250 | 10 | 160 | 4 | 20 | фл.250х250х10-Мц160-4х20 | ФБ-0,108-0,8 |
| ОТф(108/76)-3,0 | 108 | 76 | 3 | 29 | Ф2 / Ф3 | 250х250 | 10 | 160 | 4 | 20 | фл.250х250х10-Мц160-4х20 | ФБ-0,108-0,8 |
| ОТф(108/76)-3,2 | 108 | 76 | 3,2 | 30 | Ф2 / Ф3 | 250х250 | 10 | 160 | 4 | 20 | фл.250х250х10-Мц160-4х20 | ФБ-0,108-1,0 |
| ОТф(108/76)-3,5 | 108 | 76 | 3,5 | 32 | Ф2 / Ф3 | 250х250 | 10 | 160 | 4 | 20 | фл.250х250х10-Мц160-4х20 | ФБ-0,108-1,0 |
| ОТф(108/76)-4,0 | 108 | 76 | 4 | 35 | Ф2 / Ф3 | 250х250 | 10 | 160 | 4 | 20 | фл.250х250х10-Мц160-4х20 | ФБ-0,108-1,0 |
| ОТф(108/76)-4,5 | 108 | 76 | 4,5 | 38 | Ф2 / Ф3 | 250х250 | 10 | 160 | 4 | 20 | фл.250х250х10-Мц160-4х20 | ФБ-0,108-1,0 |
| ОТф(108/76)-5,0 | 108 | 76 | 5 | 41 | Ф2 / Ф3 | 250х250 | 10 | 160 | 4 | 20 | фл.250х250х10-Мц160-4х20 | ФБ-0,108-1,0 |
| ОТф(108/76)-5,5 | 108 | 76 | 5,5 | 47 | Ф2 / Ф3 | 250х250 | 10 | 160 | 4 | 20 | фл.250х250х10-Мц160-4х20 | ФБ-0,108-1,0 |
| ОТф(108/76)-6,0 | 108 | 76 | 6 | 50 | Ф2 / Ф3 | 250х250 | 10 | 160 | 4 | 20 | фл.250х250х10-Мц160-4х20 | ФБ-0,108-1,0 |
Трубчатые опоры типа ОТп (108/76) – с прямостоечным соединением опоры и фундаментного блока
| Обозначение опоры | D | d | Н | H1 | Масса | Установочное место кронштейна |
| мм | мм | м | м | кг | ||
| ОТп 108/76 | ||||||
| ОТп(108/76)-1,5-0,8 | 108 | 76 | 1,5 | 0,8 | 22 | Ф2, Ф3 |
| ОТп(108/76)-2,0-0,8 | 108 | 76 | 2 | 0,8 | 25 | Ф2, Ф3 |
| ОТп(108/76)-2,5-0,8 | 108 | 76 | 2,5 | 0,8 | 30 | Ф2, Ф3 |
| ОТп(108/76)-3,0-0,8 | 108 | 76 | 3 | 0,8 | 33 | Ф2, Ф3 |
| ОТп(108/76)-3,2-0,8 | 108 | 76 | 3,2 | 0,8 | 35 | Ф2, Ф3 |
| ОТп(108/76)-3,5-0,8 | 108 | 76 | 3,5 | 0,8 | 37 | Ф2, Ф3 |
| ОТп(108/76)-3,5-1,0 | 108 | 76 | 3,5 | 1 | 39 | Ф2, Ф3 |
| ОТп(108/76)-4,0-1,0 | 108 | 76 | 4 | 1 | 41 | Ф2, Ф3 |
| ОТп(108/76)-4,5-1,0 | 108 | 76 | 4,5 | 1 | 44 | Ф2, Ф3 |
Трубчатые опоры типа ОТф (159/76) – с фланцевым соединением опоры и фундаментного блока
| Обозначение опоры | D | d | H | Масса | Установочное | Фланец опоры | Рекомендуемый | |||||
| место | ØA | Sфл | Мц | n | dотв | Обозначение фланца | фундаментный | |||||
| мм | мм | м | кг | кронштейна | мм | мм | мм | шт | мм | блок | ||
| ОТф 159/76 | ||||||||||||
| ОТф(159/76)-2,5 | 159 | 76 | 2,5 | 31 | Ф2 / Ф3 | 300х300 | 10 | 230 | 4 | 20 | фл.300х300х10-Мц230-4х20 | ФБ-0,159-1,0 |
| ОТф(159/76)-3,0 | 159 | 76 | 3 | 34 | Ф2 / Ф3 | 300х300 | 10 | 230 | 4 | 20 | фл.300х300х10-Мц230-4х20 | ФБ-0,159-1,0 |
| ОТф(159/76)-3,5 | 159 | 76 | 3,5 | 37 | Ф2 / Ф3 | 300х300 | 10 | 230 | 4 | 20 | фл.300х300х10-Мц230-4х20 | ФБ-0,159-1,5 |
| ОТф(159/76)-4,0 | 159 | 76 | 4 | 42 | Ф2 / Ф3 | 300х300 | 10 | 230 | 4 | 20 | фл.300х300х10-Мц230-4х20 | ФБ-0,159-1,5 |
| ОТф(159/76)-4,5 | 159 | 76 | 4,5 | 45 | Ф2 / Ф3 | 300х300 | 10 | 230 | 4 | 20 | фл.300х300х10-Мц230-4х20 | ФБ-0,159-1,5 |
| ОТф(159/76)-5,0 | 159 | 76 | 5 | 48 | Ф2 / Ф3 | 300х300 | 10 | 230 | 4 | 20 | фл.300х300х10-Мц230-4х20 | ФБ-0,159-1,5 |
| ОТф(159/76)-5,5 | 159 | 76 | 5,5 | 51 | Ф2 / Ф3 | 300х300 | 10 | 230 | 4 | 20 | фл.300х300х10-Мц230-4х20 | ФБ-0,159-1,5 |
| ОТф(159/76)-6,0 | 159 | 76 | 6 | 54 | Ф2 / Ф3 | 300х300 | 10 | 230 | 4 | 20 | фл.300х300х10-Мц230-4х20 | ФБ-0,159-1,5 |
Трубчатые опоры типа ОТп (159/76) – с прямостоечным соединением опоры и фундаментного блока
| Обозначение опоры | D | d | Н | H1 | Масса | Установочное место кронштейна |
| мм | мм | м | м | кг | ||
| ОТп 159/76 | ||||||
| ОТп(159/76)-2,5-0,8 | 159 | 76 | 2,5 | 0,8 | 39 | Ф2, Ф3 |
| ОТп(159/76)-3,0-0,8 | 159 | 76 | 3 | 0,8 | 42 | Ф2, Ф3 |
| ОТп(159/76)-3,0-1,0 | 159 | 76 | 3 | 1 | 45 | Ф2, Ф3 |
| ОТп(159/76)-3,5-0,8 | 159 | 76 | 3,5 | 0,8 | 45 | Ф2, Ф3 |
| ОТп(159/76)-3,5-1,0 | 159 | 76 | 3,5 | 1 | 48 | Ф2, Ф3 |
| ОТп(159/76)-4,0-1,5 | 159 | 76 | 4 | 1,5 | 61 | Ф2, Ф3 |
| ОТп(159/76)-4,5-1,5 | 159 | 76 | 4,5 | 1,5 | 64 | Ф2, Ф3 |
| ОТп(159/76)-5,0-1,5 | 159 | 76 | 5 | 1,5 | 67 | Ф2, Ф3 |
Трубчатые опоры типа ОТф (133/108) – с фланцевым соединением опоры и фундаментного блока.
Техническая документация
- ГОСТ 32947-2014 Опоры стационарного электрического освещения скачать
- ГОСТ 8732-78 Трубы стальные бесшовные горячедеформированные скачать
Цены на опоры освещения
Силовые опоры освещения
| Марка опоры | Нагрузка, кгс | Высота опоры, м | Вес, кг | Диаметр | Цена с НДС, руб./шт. | |||
| D | d | Грунт | гор. цинк | сырьё | ||||
| Опора ОС 0,3х9,0(2,0) | 300 | 11,0 | 430 | 35 500 | 43 500 | ГОСТ 8732-78 | ||
| Опора ОС 0,4х9,0(2,0) | 400 | 11,0 | 601 | 219 | 168 | 46 000 | 60 000 | ГОСТ 8732-78 |
| Опора ОС 0,7х9,0(2,0) | 700 | 11,0 | 611 | 273 | 219 | 47 000 | 61 000 | ГОСТ 8732-78 |
| Опора ОС 0,8х9,0(2,0) | 800 | 11,0 | 638 | 273 | 219 | 48 000 | 64 000 | ГОСТ 8732-78 |
| Опора ОС 0,9х9,0(2,0) | 900 | 11,0 | 749 | 325 | 273 | 56 000 | 75 000 | ГОСТ 8732-78 |
| Опора ОС 1,0х9,0(2,0) | 1000 | 11,0 | 1204 | 325 | 273 | 90 000 | 120 000 | ГОСТ 8732-78 |
| Опора ОС 1,1х9,0(2,0) | 1100 | 11,0 | 1246 | 325 | 273 | 93 000 | 121 000 | ГОСТ 8732-78 |
| Опора ОС 1,5х9,0(2,0) | 1500 | 11,0 | 1349 | 325 | 273 | 115 000 | 135 000 | ГОСТ 8732-78 |
| Опора ОС 2,1х9,0(2,0) | 2100 | 11,0 | 1603 | 325 | 273 | 120 000 | 160 000 | ГОСТ 8732-78 |
Цены на металлические трубчатые опоры ОМ2 контактных сетей трамвая и троллейбуса (2-х звеньевые)
| Марка опоры | Нагрузка, кгс | Высота, м | Вес, кг | D1, мм | D2, мм | Грунт ГФ-021, руб./шт. | Горячий цинк, руб./шт. | Сырьё |
| ОМ2-4-11,5 | 400 | 11,5 | 432 | 219 | 168 | 37 000 | 45 500 | ГОСТ 8732-78 |
| ОМ2-6-11,5 | 600 | 11,5 | 586 | 245 | 219 | 50 000 | 61 500 | ГОСТ 8732-78 |
| ОМ2-9-11,5 | 900 | 11,5 | 657 | 299 | 245 | 56 000 | 69 000 | ГОСТ 8732-78 |
| ОМ2-12-11,5 | 1200 | 11,5 | 810 | 325 | 245 | 69 000 | 85 000 | ГОСТ 8732-78 |
| ОМ2-12-12,5 | 1200 | 12,5 | 1005 | 377 | 299 | 89 000 | 108 500 | ГОСТ 8732-78 |
| ОМ2-15-12,5 | 1500 | 12,5 | 1052 | 402 | 299 | 95 500 | 118 500 | ГОСТ 8732-78 |
| ОМ2-18-12,5 | 1800 | 12,5 | 1228 | 426 | 351 | 111 000 | 142 000 | ГОСТ 8732-78 |
Цены на металлические трубчатые опоры ОМ3контактных сетей трамвая и троллейбуса (3-х звеньевые)
| Марка опоры | Нагрузка, кгс | Высота опоры, м | Вес, кг | D1, мм | D2, мм | D3, мм | Грунт Г-021, руб./шт. (с НДС) | Горячий цинк, руб./шт. (с НДС) |
| ОМ3-4-11,5 | 400 | 11,5 | 400 | 219 | 194 | 146 | 34 500 | 42 000 |
| ОМ3-6-11,5 | 600 | 11,5 | 560 | 245 | 219 | 168 | 49 500 | 60 000 |
| ОМ3-9-11,5 | 900 | 11,5 | 648 | 299 | 245 | 194 | 57 500 | 70 000 |
| ОМ3-12-11,5 | 1200 | 11,5 | 817 | 325 | 273 | 219 | 71 500 | 88 000 |
| ОМ3-12-12,5 | 1200 | 12,5 | 974 | 377 | 299 | 219 | 86 000 | 106 000 |
| ОМ3-15-12,5 | 1500 | 12,5 | 1057 | 402 | 325 | 219 | 94 000 | 117 000 |
| ОМ3-18-12,5 | 1800 | 12,5 | 1223 | 426 | 351 | 273 | 110 000 | 142 000 |
Прайс-лист на типовые опоры наружного освещения ОП (Ø89/Ø57)
| Опора ОП (Ø89/Ø57) | ||||
| Обозначения | размеры, мм | цена | ||
| H | h | h1 | ||
| Опора ОП-1,0-0,5 | 1000 | 500 | 900 | 1 100 |
| Опора ОП-1,5-0,5 | 1500 | 500 | 900 | 1 290 |
| Опора ОП-2,0-0,8 | 2000 | 800 | 900 | 1 580 |
| Опора ОП-2,5-0,8 | 2500 | 800 | 900 | 1 750 |
| Опора ОП-3,0-0,8 | 3000 | 800 | 900 | 2 000 |
| Опора ОП-3,5-0,8 | 3500 | 800 | 900 | 2 23 |
Прайс-лист на типовые опоры наружного освещения ОПф (Ø89/Ø57)
| Опора ОПф (Ø89/Ø57) | ||||||
| Обозначения | размеры, мм | Кол-во крепежных болтов | цена | |||
| H | h | h1 | ||||
| Опора ОПф-1,0-0,5 | 1000 | 500 | 900 | 4 х М12 | 1 445 | |
| Опора ОПф-1,5-0,5 | 1500 | 500 | 900 | 4 х М12 | 1 675 | |
| Опора ОПф-2,0-0,8 | 2000 | 800 | 900 | 4 х М12 | 1 980 | |
| Опора ОПф-2,5-0,8 | 2500 | 800 | 900 | 4 х М12 | 2 195 | |
| Опора ОПф-3,0-0,8 | 3000 | 800 | 900 | 4 х М12 | 2 460 | |
| Опора ОПф-3,5-0,8 | 3500 | 800 | 900 | 4 х М12 | 2 730 | |
Прайс-лист на опоры трубчатые ОТ1 (Ø108/Ø76)
| Опора ОТ1 (Ø108/Ø76) | ||||
| Обозначения | размеры, мм | цена | ||
| H | h | h1 | ||
| Опора ОТ1-2,5-0,8 | 2500 | 800 | 1200 | 2 380 |
| Опора ОТ1-3,0-0,8 | 3000 | 800 | 1200 | 2 625 |
| Опора ОТ1-3,2-0,8 | 3200 | 800 | 1200 | 2 745 |
| Опора ОТ1-3,5-1,0 | 3500 | 1000 | 1200 | 3 060 |
| Опора ОТ1-4,0-1,0 | 4000 | 1000 | 1200 | 3 390 |
| Опора ОТ1-4,5-1,0 | 4500 | 1000 | 1200 | 3 650 |
| Опора ОТ1-5,0-1,0 | 5000 | 1000 | 2000 | 4 070 |
| Опора ОТ1-5,5-1,5 | 5500 | 1500 | 2000 | 4 675 |
| Опора ОТ1-6,0-1,5 | 6000 | 1500 | 2000 | 4 975 |
| Опора ОТ1-6,5-1,5 | 6500 | 1500 | 2000 | 5 240 |
| Опора ОТ1-7,0-1,5 | 7000 | 1500 | 2000 | 5 545 |

Прайс-лист на опоры трубчатые ОТ1ф (Ø108/Ø76)
| Опора ОТ1ф (Ø108/Ø76) | ||||||
| Обозначения | размеры, мм | Кол-во крепежных болтов | цена | |||
| H | h | h1 | ||||
| Опора ОТ1ф-2,5-0,8 | 2500 | 800 | 1200 | 4 х М16 | 2 825 | |
| Опора ОТ1ф-3,0-0,8 | 3000 | 800 | 1200 | 4 х М16 | 3 090 | |
| Опора ОТ1ф-3,2-0,8 | 3200 | 800 | 1200 | 4 х М16 | 3 150 | |
| Опора ОТ1ф-3,5-1,0 | 3500 | 1000 | 1200 | 4 х М16 | 3 450 | |
| Опора ОТ1ф-4,0-1,0 | 4000 | 1000 | 1200 | 4 х М16 | 3 680 | |
| Опора ОТ1ф-4,5-1,0 | 4500 | 1000 | 1200 | 4 х М16 | 3 930 | |
| Опора ОТ1ф-5,0-1,0 | 5000 | 1000 | 2000 | 4 х М20 | 4 460 | |
| Опора ОТ1ф-5,5-1,5 | 5500 | 1500 | 2000 | 4 х М20 | 5 140 | |
| Опора ОТ1ф-6,0-1,5 | 6000 | 1500 | 2000 | 4 х М20 | 5 415 | |
| Опора ОТ1ф-6,5-1,5 | 6500 | 1500 | 2000 | 4 х М20 | 5 680 | |
| Опора ОТ1ф-7,0-1,5 | 7000 | 1500 | 2000 | 4 х М20 | 5 980 | |

Прайс-лист на опоры трубчатые ОТ3 (Ø159/Ø133)
| Опора ОТ3 (Ø159/Ø133) | ||||
| Обозначения | размеры, мм | цена | ||
| H | h | h1 | ||
| Опора ОТ3-5,0-1,5 | 5000 | 1500 | 2500 | 7 300 |
| Опора ОТ3-6,0-1,5 | 6000 | 1500 | 3000 | 8 380 |
| Опора ОТ3-7,0-1,5 | 7000 | 1500 | 3500 | 9 600 |
| Опора ОТ3-7,0-2,0 | 7000 | 2000 | 3500 | 10 200 |
| Опора ОТ3-8,0-2,0 | 8000 | 2000 | 3500 | 11 255 |
| Опора ОТ3-9,0-2,0 | 9000 | 2000 | 3500 | 12 400 |
Прайс-лист на опоры трубчатые ОТ3ф (Ø159/Ø133)
| Опора ОТ3ф (Ø159/Ø133) | ||||||
| Обозначения | размеры, мм | Кол-во крепежных болтов | цена | |||
| H | h | h1 | ||||
| Опора ОТ3ф-5,0-1,5 | 5000 | 1500 | 2500 | 4 х М24 | 9 200 | |
| Опора ОТ3ф-6,0-1,5 | 6000 | 1500 | 3000 | 4 х М24 | 10 360 | |
| Опора ОТ3ф-7,0-1,5 | 7000 | 1500 | 3500 | 4 х М27 | 11 630 | |
| Опора ОТ3ф-7,0-2,0 | 7000 | 2000 | 3500 | 4 х М27 | 12 210 | |
| Опора ОТ3ф-8,0-2,0 | 8500 | 2000 | 3500 | 4 х М27 | 13 240 | |
| Опора ОТ3ф-9,0-2,0 | 9000 | 2000 | 3500 | 4 х М27 | 14 330 | |
Прайс-лист на опоры освещения трубные ОНТ, ОНФТ, ОСТ, ОСФТ
| Наименование изделия | Масса, кг | Цена с НДС, руб |
Опоры освещения несиловые трубные (прямостоечные) | ||
| ОНТ 4,0-5,0 (Оцинкованная) | 42 | 8 590,4 |
| ОНТ 4,5-5,5 (Оцинкованная) | 46 | 9 050,6 |
| ОНТ 5,0-6,5 (Оцинкованная) | 54 | 9 510,8 |
| ОНТ 5,5-7,0 (Оцинкованная) | 58 | 10 277,8 |
| ОНТ 6,0-7,5 (Грунт Серый) | 63 | 9 357,4 |
| ОНТ 6,0-7,5 (Оцинкованная) | 63 | 10 584,6 |
| ОНТ 6,5-8,0 (Оцинкованная) | 65 | 12 578,8 |
| ОНТ 7,0-8,5 (Грунт Серый) | 94 | 12 578,8 |
| ОНТ 7,0-8,5 (Оцинкованная) | 94 | 13 959,4 |
| ОНТ 7,5-9,0 (Оцинкованная) | 100 | 15 340,0 |
| ОНТ 8,0-9,7 (Грунт Серый) | 141 | 14 573,0 |
| ОНТ 8,0-9,7 (Оцинкованная) | 141 | 15 953,6 |
| ОНТ 8,5-10,2 (Грунт Серый) | 146 | 17 334,2 |
| ОНТ 8,5-10,2 (Оцинкованная) | 146 | 18 714,8 |
| ОНТ 9,0-10,7 (Грунт Серый) | 151 | 17 334,2 |
| ОНТ 9,0-10,7 (Оцинкованная) | 151 | 18 714,8 |
| ОНТ 10,0-12,0 (Оцинкованная) | 164 | 19 942,0 |
Опоры освещения несиловые фланцевые трубные | ||
| ОНФТ 4,0 (Оцинкованная) | 34 | 6 136,0 |
| ОНФТ 4,5 (Оцинкованная) | 39 | 7 209,8 |
| ОНФТ 5,0 (Оцинкованная) | 42 | 7 209,8 |
| ОНФТ 5,5 (Оцинкованная) | 47 | 8 590,4 |
| ОНФТ 6,0 (Оцинкованная) | 49 | 8 590,4 |
| ОНФТ 6,5 (Оцинкованная) | 54 | 10 277,8 |
| ОНФТ 7,0 (Оцинкованная) | 80 | 10 277,8 |
| ОНФТ 7,0 (Эмаль серая) | 80 | 8 897,2 |
| ОНФТ 7,5 (Грунт Серый) | 83 | 10 584,6 |
| ОНФТ 7,5 (Оцинкованная) | 83 | 12 578,8 |
| ОНФТ 8,0 (Оцинкованная) | 87 | 12 578,8 |
| ОНФТ 8,5 (Оцинкованная) | 91 | 15 340,0 |
| ОНФТ 9,0 (Грунт Серый) | 94 | 13 959,4 |
| ОНФТ 9,0 (Оцинкованная) | 94 | 15 340,0 |
| ОНФТ 10,0 (Оцинкованная) | 142 | 17 334,2 |
| ОНФТ 11,0 (Оцинкованная) | 157 | 21 322,6 |
| ОНФТ 12,0 (Оцинкованная) | 167 | 23 930,4 |
Опоры силовые трубные | ||
| ОСТ-400-10,0/12,5-01 Оцинкованная | 44 179,2 | |
| ОСТ-400-10,0/12,5-02 Оцинкованная | 44 179,2 | |
| ОСТ-400-8,0/10,0-01 Оцинкованная | 41 418,0 | |
| ОСТ-400-8,5/10,5-01 Грунт Серый | 398 | 27 765,4 |
| ОСТ-400-8,5/10,5-01 Оцинкованная | 398 | 40 037,4 |
| ОСТ-400-8,5/10,5-02 Грунт Серый | 398 | 27 765,4 |
| ОСТ-400-8,5/10,5-02 Оцинкованная | 398 | 40 037,4 |
| ОСТ-400-9,0/11,0-01 Оцинкованная | 436 | 41 418,0 |
| ОСТ-400-9,0/11,0-02 Оцинкованная | 436 | 41 418,0 |
| ОСТ-400-9,5/11,5-02 Оцинкованная | 44 792,8 | |
| ОСТ-700-10,0/12,5-01 Оцинкованная | 61 053,2 | |
| ОСТ-700-10,0/12,5-02 Оцинкованная | 61 053,2 | |
| ОСТ-700-8,5/10,5-01 Грунт Серый | 41 264,6 | |
| ОСТ-700-8,5/10,5-01 Оцинкованная | 538 | 51 695,8 |
| ОСТ-700-8,5/10,5-02 Оцинкованная | 538 | 51 695,8 |
| ОСТ-700-9,0/11,0-01 Оцинкованная | 560 | 54 610,4 |
| ОСТ-700-9,0/11,0-02 Оцинкованная | 560 | 54 610,4 |
Опоры силовые фланцевые трубные | ||
| ОСФТ-400-12,0-01 Оцинкованная | 62 587,2 | |
| ОСФТ-400-8,5-01 Оцинкованная | 345 | 37 429,6 |
| ОСФТ-400-8,5-02 Оцинкованная | 345 | 38 043,2 |
| ОСФТ-400-9,0-01 Оцинкованная | 378 | 40 037,4 |
| ОСФТ-400-9,0-02 Оцинкованная | 378 | 40 037,4 |
| ОСФТ-700-8,5-01 Оцинкованная | 436 | 51 389,0 |
| ОСФТ-700-8,5-02 Оцинкованная | 436 | 52 002,6 |
| ОСФТ-700-9-01 Оцинкованная | 458 | 53 383,2 |
| ОСФТ-700-9-02 Оцинкованная | 458 | 54 150,2 |
Прайс-лист на опоры освещения НФГ, НПГ, НФ, НП, НФК, НПК, СП, СФ, СПГ, СФГ
| Наименование изделия | Масса, кг | Цена с НДС, руб |
Опоры силовые прямостоечные трубчатые (Тип СП) | ||
| Опора ТАНС.11.016.000 (СП-700-9,0/11,0-01-ц) | 641 | 75 884,97 |
| Опора ТАНС.11.026.000 (СП-400-9,0/11,0-01-ц) | 521 | 60 813,90 |
| Опора ТАНС.11.027.000 (СП-800-9,0/11,0-01-ц) | 747 | 87 149,67 |
| Опора ТАНС.11.032.000 (СП-400-8,5/10,5-01-ц) | 432 | 50 442,88 |
| Опора ТАНС.11.034.000 (СП-600-11,0/13,5-01-лк) | 907 | 105 883,70 |
| Опора ТАНС.11.058.000 (СП-300-9,0/11,0-01-ц) | 336 | 42 830,11 |
| Опора ТАНС.11.096.000 (СП-700-8,5/10,5-01-ц) | 620 | 72 387,51 |
| Опора ТАНС.11.106.000 (СП-400-8,5/11,0-01-ц) | 456 | 53 190,09 |
| Опора ТАНС.11.107.000 (СП-700-8,5/11,0-01-ц) | 653 | 76 171,83 |
| Опора ТАНС.11.116.000 (СП-400-9,0/11,0-02-ц) | 535 | 62 435,75 |
| Опора ТАНС.11.117.000 (СП-700-9,0/11,0-02-ц) | 649 | 75 796,71 |
| Опора ТАНС.11.118.000 (СП-400-8,5/10,5-02-ц) | 441 | 51 446,88 |
Опоры силовые фланцевые трубчатые (Тип СФ)
|
||
| Опора ТАНС.11.061.000 (СФ-300-8,5-01-ц) | 311 | 45 378,73 |
| Опора ТАНС.11.062.000 (СФ-400-8,5-01-ц) | 372 | 50 696,00 |
| Опора ТАНС.11.063.000 (СФ-700-9,0-01-ц) | 500 | 68 117,74 |
| Опора ТАНС.11.108.000 (СФ-400-9,0-01-ц) | 393 | 53 465,92 |
| Опора ТАНС.11.046.000 (СФ-400-11,0-02-ц) | 621 | 84 490,71 |
| Опора ТАНС.11.109.000 (СФ-700-8,5-01-ц) | 482 | 65 558,09 |
| Опора ТАНС.11.112.000 (СФ-400-9,0-02-ц) | 402 | 54 778,85 |
| Опора ТАНС.11.113.000 (СФ-700-8,5-02-ц) | 491 | 66 871,01 |
| Опора ТАНС.11.114.000 (СФ-400-8,5-02-ц) | 382 | 55 716,65 |
| Опора ТАНС.11.115.000 (СФ-700-9,0-02-ц) | 510 | 69 430,67 |
Опоры силовые прямостоечные граненые (Тип СПГ) | ||
| Опора ТАНС.11.119.000 (СПГ-400-9,0/11,5-02-ц) | 331 | 46 393,77 |
| Опора ТАНС.11.120.000 (СПГ-700-9,0/11,5-02-ц) | 406 | 56 919,25 |
| Опора ТАНС.11.121.000 (СПГ-1000-9,0/11,5-02-ц) | 449 | 61 751,70 |
| Опора ТАНС.11.122.000 (СПГ-1300-9,0/11,5-02-ц) | 512 | 69 883,02 |
Опоры силовые фланцевые граненые (Тип СФГ) | ||
| Опора ТАНС.11.044.000 (СФГ-400-9,0-02-ц) | 237 | 36 331,67 |
| Опора ТАНС.11.042.000 (СФГ-700-9,0-02-ц) | 299 | 44 771,91 |
| Опора ТАНС.11.041.000 (СФГ-400-10,0-02-ц) | 272 | 41 660,61 |
| Опора ТАНС.11.045.000 (СФГ-700-10,0-02-ц) | 349 | 52 152,99 |
| Опора ТАНС.11.008.000 (СФГ-1000-10,0-02-ц) | 423 | 62 910,17 |
| Опора ТАНС.11.009.000 (СФГ-1300-10,0-02-ц) | 487 | 71 902,06 |
Опоры несиловые фланцевые круглоконические (Тип НФК) | ||
| Опора ТАНС.12.050.000 (НФК-5,0-02-ц) | 45 | 10 259,81 |
| Опора ТАНС.12.052.000 (НФК-6,0-02-ц) | 56 | 11 512,71 |
| Опора ТАНС.12.054.000 (НФК-7,0-02-ц) | 76 | 16 343,31 |
| Опора ТАНС.12.056.000 (НФК-8,0-02-ц) | 112 | 22 872,29 |
| Опора ТАНС.12.058.000 (НФК-9,0-02-ц) | 127 | 25 030,05 |
| Опора ТАНС.12.060.000 (НФК-10,0-02-ц) | 159 | 26 714,49 |
| Опора ТАНС.12.064.000 (НФК-11,5-02-ц) | 231 | 36 431,39 |
Опоры несиловые прямостоечные круглоконические (Тип НПК) | ||
| Опора ТАНС.12.049.000 (НПК-5,0/6,25-02-ц) | 55 | 11 470,95 |
| Опора ТАНС.12.051.000 (НПК-6,0/7,25-02-ц) | 66 | 12 793,44 |
| Опора ТАНС.12.053.000 (НПК-7,0/8,5-02-ц) | 87 | 15 438,44 |
| Опора ТАНС.12.055.000 (НПК-8,0/9,5-02-ц) | 136 | 25 489,44 |
| Опора ТАНС.12.057.000 (НПК-9,0/11,0-02-ц) | 167 | 27 340,94 |
| Опора ТАНС.12.059.000 (НПК-10/12-02-ц) | 189 | 31 210,99 |
| Опора ТАНС.12.063.000 (НПК-12,0/14-02-ц) | 275 | 44 018,36 |
Опоры несиловые фланцевые граненые (Тип НФГ)![]() | ||
| Опора ТАНС.12.026.000 (НФГ-3,0-02-ц) | 22 | 7 667,33 |
| Опора ТАНС.12.028.000 (НФГ-4,0-02-ц) | 30 | 9 142,33 |
| Опора ТАНС.12.030.000 (НФГ-5,0-02-ц) | 48 | 9 607,42 |
| Опора ТАНС.12.032.000 (НФГ-6,0-02-ц) | 59 | 10 776,79 |
| Опора ТАНС.12.034.000 (НФГ-7,0-02-ц) | 90 | 15 294,80 |
| Опора ТАНС.12.036.000 (НФГ-8,0-02-ц) | 120 | 21 394,12 |
| Опора ТАНС.12.038.000 (НФГ-9,0-02-ц) | 150 | 23 427,23 |
| Опора ТАНС.12.040.000 (НФГ-10,0-02-ц) | 159 | 24 995,25 |
| Опора ТАНС.12.042.000 (НФГ-10,0-02-ц) | 189 | 28 848,85 |
| Опора ТАНС.12.080.000 (НФГ-11,5-02-ц) | 222 | 34 084,43 |
| Опора ТАНС.12.084.000 (НФГ-11,5(75)-02-ц) | 190 | 29 965,06 |
| Опора ТАНС.12.046.000 (НФГ-14,0-02-ц) | 317 | 46 987,34 |
| Опора ТАНС.12.048.000 (НФГ-16,0-02-ц) | 374 | 58 787,33 |
Опоры несиловые прямостоечные граненые (Тип НПГ) | ||
| Опора ТАНС.12.025.000 (НПГ-3/4,0-02-ц) | 26 | 9 285,34 |
| Опора ТАНС.12.027.000 (НПГ-4/5,0-02-ц) | 35 | 11 289,97 |
| Опора ТАНС.12.029.000 (НПГ-5/6,25-02-ц) | 54 | 11 331,73 |
| Опора ТАНС.12.031.000 (НПГ-6/7,25-02-ц) | 66 | 12 751,68 |
| Опора ТАНС.12.033.000 (НПГ-7/8,5-02-ц) | 107 | 19 057,92 |
| Опора ТАНС.12.035.000 (НПГ-8/9,5-02-ц) | 134 | 25 057,89 |
| Опора ТАНС.12.037.000 (НПГ-9.0/11.0-02-ц) | 165 | 27 006,84 |
| Опора ТАНС.12.039.000 (НПГ-10(75)/11,5-02-ц) | 187 | 30 890,81 |
| Опора ТАНС.12.041.000 (НПГ-10(100)/11,5-02-ц) | 222 | 35 777,10 |
| Опора ТАНС.12.043.000 (НПГ-12/14,0-02-ц) | 276 | 44 435,99 |
| Опора ТАНС.12.045.000 (НПГ-14/17,0-02-ц) | 345 | 55 684,20 |
| Опора ТАНС.12.047.000 (НПГ-16/19,0-02-ц) | 396 | 65 289,72 |
Поворотные Опоры серии П-ФГ | ||
| Опора ТАНС.17.008.000 (П-ФГ-6-ц) | 71 | 26 578,50 |
| Опора ТАНС.17.005.000 (П-ФГ-8-ц) | 152 | 34 676,72 |
| Опора ТАНС.17.011.000 (П-ФГ-10-ц) | 190 | 44 418,86 |
| Опора П-ФГ-12,0-ц | 225 | 52 594,31 |
| Опора ТАНС.17.004.000 (П-ФГ-16-к-ц) | 730 | 132 418,07 |
| Опора ТАНС.17.007.000 (П-ФГ-20-ц) | 1130 | 190 186,85 |
| Опора П-ФГ-25-ц | 1720 | 273 397,74 |
Опоры несиловые трубчатые (Тип НФ) | ||
| Опора ТАНС.12.100.000 (НФ-2,0-02-ц) | 24 | 6 211,58 |
| Опора ТАНС.12.100.000-01 (НФ-3,0-02-ц) | 31 | 7 314,88 |
| Опора ТАНС.12.100.000-02 (НФ-4,0-02-ц) | 37 | 7 888,60 |
| Опора ТАНС.12.102.000 (НФ-4,0-02-ц) | 57 | 11 209,53 |
| Опора ТАНС.12.102.000-01 (НФ-5,0-02-ц) | 66 | 12 952,74 |
| Опора ТАНС.12.102.000-02 (НФ-6,0-02-ц) | 74 | 14 706,99 |
| Опора ТАНС.12.014.000 (НФ12-02-ц) | 328 | 46 029,68 |
| Опора ТАНС.12.016.000 (НФ-15,0-02-ц) | 592 | 78 786,65 |
| Опора ТАНС.12.020.000 (НФ-18,0-02-ц) | 618 | 90 514,73 |
| Опора ТАНС.12.022.000 (НФ-21,0-02-ц) | 840 | 109 954,88 |
| Опора ТАНС.12.023.000 (НФ-25,0-02-ц) | 1808 | 236 713,02 |
| Опора ТАНС.12.024.000 (НФ-30,0-02-ц) | 2076 | 271 731,76 |
Опоры несиловые трубчатые (Тип НП)![]() | ||
| Опора ТАНС.12.103.000 (НП-2,0/2,8-02-ц) | 29 | 6 686,00 |
| Опора ТАНС.12.103.000-01 (НП-3,0/4,0-02-ц) | 35 | 7 502,44 |
| Опора ТАНС.12.103.000-02 (НП-4,0/5,0-02-ц) | 41 | 7 811,36 |
| Опора ТАНС.12.104.000 (НП-4,0/5,0-02-ц) | 73 | 12 511,42 |
| Опора ТАНС.12.104.000-01 (НП-5,0/6,0-02-ц) | 81 | 13 901,58 |
| Опора ТАНС.12.104.000-02 (НП-6,0/7,0-02-ц) | 90 | 15 324,84 |
| Опора ТАНС.12.013.000 (НП-12/14,0-02-ц) | 360 | 45 455,96 |
| Опора ТАНС.12.015.000 (НП-15/17,0-02-ц) | 579 | |

