Цена по запросу						
					
														
														Заказать
														
												Наши менеджеры обязательно свяжутся с вами и уточнят условия заказа
														
																													
													Основной функцией расширительного бака является приём избытка воды, который возникает при её тепловом расширении в процессе нагревания.
Расширительный бак представляет собой:
- элемент жидкостной системы отопления;
- элемент охлаждения, например, двигателей внутреннего сгорания.
Расширительный бак может бывает двух видов:
- Открытый. Это бак из листовой стали, который сообщается с атмосферой. Бывают цилиндрическими или прямоугольными с люком сверху. Корпус расширительного бака оборудован несколькими патрубками. Обычно такие баки устанавливают на чердаке, лестничной площадке или крыше. Недостатками открытого бака являются его большой объем и проблемы с его размещением в помещениях, а так же потеря тепла черезего стенки. Почти во всех случаях необходима установка соединительных труб.
- Закрытый. Это бак, который находится под переменным, строго ограниченным избыточным давлением. Такие баки размещают прямо на тепловых станциях. Недостатком закрытого расширительного бака является то, что его ёмкость намного превышает ёмкость открытых баков.
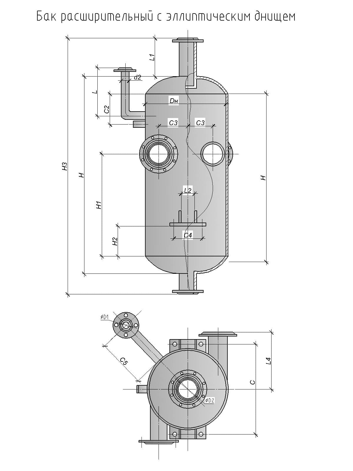
Чертеж бака расширительного с эллиптическим днищем
  
Завод «Северозапад» осуществляет доставку продукции по всей России. Мы предоставляем:
- Широкий ассортимент продукции;
- Производство только из сырья высокого качества;
- Доставка в заранее установленные сроки;
- Сохранность целостности изделий при перевозке;
- Профессионально налаженная логистика;
- Доставка как на склад, так и на объект покупателя;
- Доставляем изделия любых габаритов и формы.
Для постоянных клиентов у нас разработана система скидок, которая позволяет вам еще более выгодно сотрудничать с нами. Воспользуйтесь онлайн калькулятором в разделе меню “Доставка”, чтобы узнать стоимость доставки до места назначения.
											Вам также может понравиться										
										