Заказать
Наши менеджеры обязательно свяжутся с вами и уточнят условия заказа
ТС-4 Тросостойка ТС-5 Молниеотвод

Чертеж молниеотвода МС-31,7 Чертеж ТС-4 (тросостойка)
ТС-34 Стойка нижняя ТС-38 Стойка верхняя

Чертеж ТС-5 (молниеотвод)
Чертеж ТС-34 (стойка нижняя)
Чертеж ТС-38 (стойка верхняя)
ТС-44 Крепежный элемент ТС-45 Крепежный элемент
Чертеж ТС-44 (крепежный элемент)
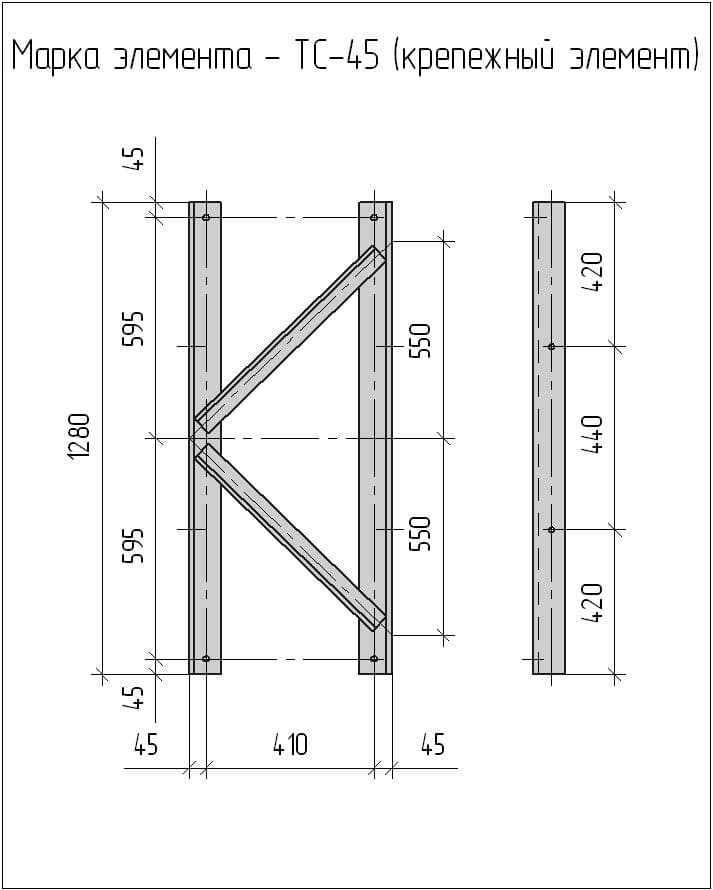
Чертеж ТС-45 (крепежный элемент)
| Марка | Высота,м | Расход стали,кг | Марка стали |
Стоимость за ед.руб. с покрытием грунтом и краской |
Стоимость за ед.руб. с покрытием холодным цинкованием |
Стоимость за ед.руб. с покрытием горячим цинкованием |
| ПМЖ-16.6 | 16.56(24.3) | 909 | Ст3 | |||
| ПМЖ-19.3 | 19.31(27.05) | 973 | Ст3 | |||
| ПМЖ-22.8 | 22.81(30.65) | 1090 | Ст3 | |||
| ПМС-24.0 | 23.8 (31.75) | 2623 | Ст3 | |||
| ПМС-24.0 | 23.8 (31.75) | 2623 | 09Г2С | |||
| ПМС-29.3 | 29.3(37.05) | 3361 | Ст3 | |||
| ПМС-29.3 | 29.3(37.05) | 3361 | 09Г2С | |||
| ПМС-32.5 | 32.5(40.25) | 3878 | Ст3 | |||
| ПМС-32.5 | 32.5(40.25) | 3878 | 09Г2С | |||
| МЖ-24.3 | 16.46(24.3) | 218 | Ст3 | |||
| МЖ-27.1 | 19.21(27.05) | 218 | Ст3 | |||
| МЖ-30.6 | 22.71(30.55) | 210 | Ст3 | |||
| МС-31.7 | 23.95(31.7) | 1809 | Ст3 | |||
| МС-31.7 | 23.95(31.7) | 1809 | 09Г2С | |||
| МС-37.0 | 29.37(37.04) | 2407 | Ст3 | |||
| МС-37.0 | 29.37(37.04) | 2407 | 09Г2С | |||
| МС-40.2 | 32.52(40.24) | 2853 | Ст3 | |||
| МС-40.2 | 32.52(40.24) | 2853 | 09Г2С |
Молниеотводы
| Марка | Высота,м | Расход стали,кг | Марка стали |
Стоимость за ед.руб. с покрытием грунтом и краской |
Стоимость за ед.руб. с покрытием холодным цинкованием |
Стоимость за ед.руб. с покрытием горячим цинкованием |
Серия |
| МС26.2 | 26,2 | 1415,4 | Ст3/09Г2С | 3.407-108 | |||
| МС31.7 | 31,7 | 1902 | Ст3/09Г2С | 3.407.9-172 | |||
| МС33.2 | 33,2 | 1709,4 | Ст3/09Г2С | 3.407-108 | |||
| МС37 | 37 | 2494 | Ст3/09Г2С | 3.407.9-172 | |||
| МС40.2 | 40,2 | 2940 | Ст3/09Г2С | 3.407.9-172 | |||
| Наименование | Высота, m | Расхож стали,кг | Стоимость |
| МЖ-24.3 | 24,3 | 218 | |
| МЖ-27.1 | 27,05 | 218 | |
| МЖ-30.6 | 30,5 | 210 | |
| МС-31.7 | 31,7 | 1809 | |
| МС-37.0 | 37,04 | 2407 | |
| МС-40.2 | 40,2 | 2853 |
Завод «Северозапад» осуществляет доставку продукции по всей России. Мы предоставляем:
- Широкий ассортимент продукции;
- Производство только из сырья высокого качества;
- Доставка в заранее установленные сроки;
- Сохранность целостности изделий при перевозке;
- Профессионально налаженная логистика;
- Доставка как на склад, так и на объект покупателя;
- Доставляем изделия любых габаритов и формы.
Для постоянных клиентов у нас разработана система скидок, которая позволяет вам еще более выгодно сотрудничать с нами. Воспользуйтесь онлайн калькулятором в разделе меню “Доставка”, чтобы узнать стоимость доставки до места назначения.
Вам также может понравиться