Прожекторная мачта ПМЖ представляет собой инженерную металлоконструкцию с железобетонной стойкой.
В функции прожекторной мачты ПМЖ входит:
- освещение больших участков территории;
- защита от молний.
Для изготовления прожекторных мачт используют углеродистую сталь. При проектировании и установке мачт, сорт стали берется в соответствии с заданными климатическими условиями региона.
Мачта ПМЖ, для удобства обслуживания, оборудована металлической лестницей и защитным ограждением. По индивидуальному заказу возможно дополнительное оснащение прожекторной мачты специальными технологическими площадками.
Завод "Северозапад" принимает заказы на изготовление прожекторных мачт по серии 3.407-172.
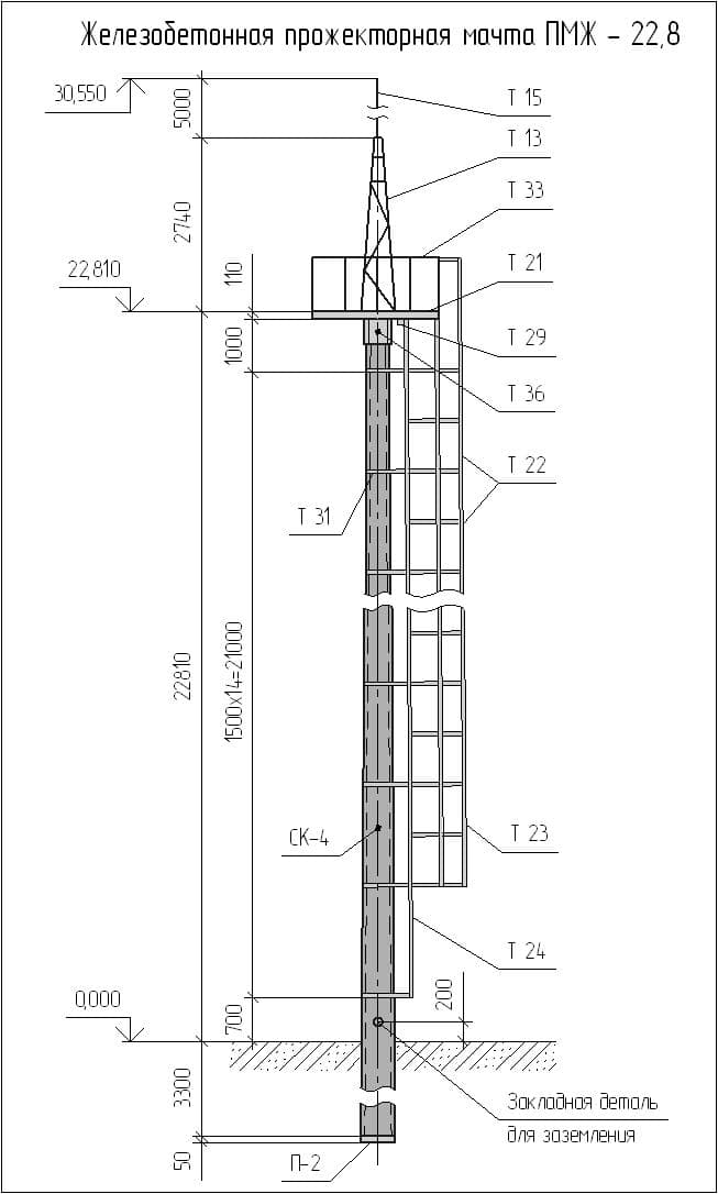
Т 13 (тросостойка) Т 15 Молниеприемник Т 21 Площадка
Чертеж прожекторной мачты ПМЖ-22,8 Чертеж Т 13 (тросостойка)
Чертеж Т-15 (молниеприемник)
Чертеж Т 21 (площадка)
Т 22, Т 23 Лестница Т 24 Лестница
Чертеж Т 22, Т 23 (лестница)
Чертеж Т 24 (лестница)
Т 29 Крепежный элемент Т 31 Крепежный элемент
Чертеж Т 29 (крепежный элемент)
Чертеж Т 31 (крепежный элемент)
Т 33 Ограждение Т 36 Оголовок

Чертеж Т 33 (ограждение)
Чертеж Т 36 (оголовок)
| Марка | Высота,м | Расход стали,кг | Марка стали |
Стоимость за ед.руб. с покрытием грунтом и краской |
Стоимость за ед.руб. с покрытием холодным цинкованием |
Стоимость за ед.руб. с покрытием горячим цинкованием |
| ПМЖ-16.6 | 16.56(24.3) | 909 | Ст3 | |||
| ПМЖ-19.3 | 19.31(27.05) | 973 | Ст3 | |||
| ПМЖ-22.8 | 22.81(30.65) | 1090 | Ст3 | |||
| ПМС-24.0 | 23.8 (31.75) | 2623 | Ст3 | |||
| ПМС-24.0 | 23.8 (31.75) | 2623 | 09Г2С | |||
| ПМС-29.3 | 29.3(37.05) | 3361 | Ст3 | |||
| ПМС-29.3 | 29.3(37.05) | 3361 | 09Г2С | |||
| ПМС-32.5 | 32.5(40.25) | 3878 | Ст3 | |||
| ПМС-32.5 | 32.5(40.25) | 3878 | 09Г2С | |||
| МЖ-24.3 | 16.46(24.3) | 218 | Ст3 | |||
| МЖ-27.1 | 19.21(27.05) | 218 | Ст3 | |||
| МЖ-30.6 | 22.71(30.55) | 210 | Ст3 | |||
| МС-31.7 | 23.95(31.7) | 1809 | Ст3 | |||
| МС-31.7 | 23.95(31.7) | 1809 | 09Г2С | |||
| МС-37.0 | 29.37(37.04) | 2407 | Ст3 | |||
| МС-37.0 | 29.37(37.04) | 2407 | 09Г2С | |||
| МС-40.2 | 32.52(40.24) | 2853 | Ст3 | |||
| МС-40.2 | 32.52(40.24) | 2853 | 09Г2С |
Завод «Северозапад» осуществляет доставку продукции по всей России. Мы предоставляем:
- Широкий ассортимент продукции;
- Производство только из сырья высокого качества;
- Доставка в заранее установленные сроки;
- Сохранность целостности изделий при перевозке;
- Профессионально налаженная логистика;
- Доставка как на склад, так и на объект покупателя;
- Доставляем изделия любых габаритов и формы.
Для постоянных клиентов у нас разработана система скидок, которая позволяет вам еще более выгодно сотрудничать с нами. Воспользуйтесь онлайн калькулятором в разделе меню “Доставка”, чтобы узнать стоимость доставки до места назначения.




