Заказать
Наши менеджеры обязательно свяжутся с вами и уточнят условия заказа
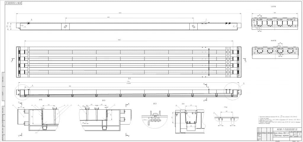
Металлоформы опор ВС 
Наш завод производит формы для изготовления железобетонных стоек ВС. Металлоформы данного типа должны соответствовать серии 3.407.1-157. Формы с габаритами выше 14 метров, выполняются из двух частей.
Основные характеристики
| Толщина металла | 5 - 50 мм |
| Количество изделий в форме | 2 шт |
| Масса | 7000 кг |
Конструкция металлоформы
- стальная рама, оборудованная лотками;
- упоры для монтажа арматуры;
- петли;
- специальные диафрагмы, фиксирующие распределение жидкого бетона.
Дополнительная услуга:
- установлен регистр подогрева.
С ценой на формы ЖБИ можно ознакомиться здесь.
Чертеж металлоформы для стоек ВС
Завод «Северозапад» осуществляет доставку продукции по всей России. Мы предоставляем:
- Широкий ассортимент продукции;
- Производство только из сырья высокого качества;
- Доставка в заранее установленные сроки;
- Сохранность целостности изделий при перевозке;
- Профессионально налаженная логистика;
- Доставка как на склад, так и на объект покупателя;
- Доставляем изделия любых габаритов и формы.
Для постоянных клиентов у нас разработана система скидок, которая позволяет вам еще более выгодно сотрудничать с нами. Воспользуйтесь онлайн калькулятором в разделе меню “Доставка”, чтобы узнать стоимость доставки до места назначения.
Вам также может понравиться

